市政工程

您的位置:首页 > 经典项目 > 市政工程

淮南市城市水系综合治理项目


  一、项目简介

  淮南市城市水系综合治理项目(东、西部污水管网及污水提升泵站)为我公司在建成区增设截污干管里程最长(长约196.09公里)、污水泵站数量最多(3座)的亚行贷款项目。

  

  二、主要技术特点、难点、关键性问题处理措施

  1、特点:服务范围广、管网建设里程长的城市污水管网系统项目。

  2、难点:①建成区地下管网复杂(项目85%以上位于建成区);②区域地质差异大,岩石段岩面起伏大;③亚行贷款项目程序多;④项目建设周期长(五年建设计划、地物及外部建设环境变化大)。

  3、关键性问题及处理措施:

  ①道路截污工程

  关键性问题:i、建成区实施范围广、里程长的污水管网项目开展方法;ii、复杂条件下新增污水管网路由的选取。

  解决措施:i、分区域梳理污水主干管,分层次完善支管网建设。ii、管线路由选取严格遵循少拆迁,减少施工难度。

  ②河道截污工程

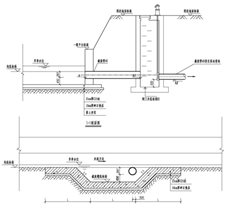
  关键性问题:不具备截污管实施条件时的处理方案(部分段落两侧建筑密集,拆迁难度大;暗涵两侧住户合流管私自接入暗涵)。

  解决措施:与属地政府对接拆迁可行性,如无法拆迁,根据具体情况在暗涵末端或明渠低点设置截流槽截流污水。

  E:水环境项目淮南水系资料八公山现状照片八公山沟11.4IMG_20151104_144928.jpg C:UsersAdministratorDesktop-明渠截流大样图 Model (1).jpg

  ③污水泵站工程

  关键性问题:泵站样式和建筑风格选择。

  解决措施:泵站采用半地下式泵房,不破坏风貌,采用与环境相适应的新中式建筑风格。

  E:5年前H-淮南淮南水系(亚行项目)淮南水系各阶段材料三座泵站效果图三座泵站效果图报规划局石姚湾泵站效果图4次修改石姚湾泵站.jpg E:5年前H-淮南淮南水系(亚行项目)淮南水系各阶段材料淮南1007现场-姚家湾泵站DJI_0676.JPG

  三、主要创新点

  1、服务面积112km2,项目规模大,其中截污干管里程长约196.09公里,污水泵站3座。

  2、建成区采用物探、外业、无人机等多种手段调查,以便多角度、多方位综合比选新建污水管网路由,减少拆迁、降低施工难度。

  3、河道两侧不具备截污管网实施条件时,采取河道末端设置截流槽截流污水。

  4、泵站选择与周边环境相应的新中式建筑风格。